Villa 9279

Villa 9279

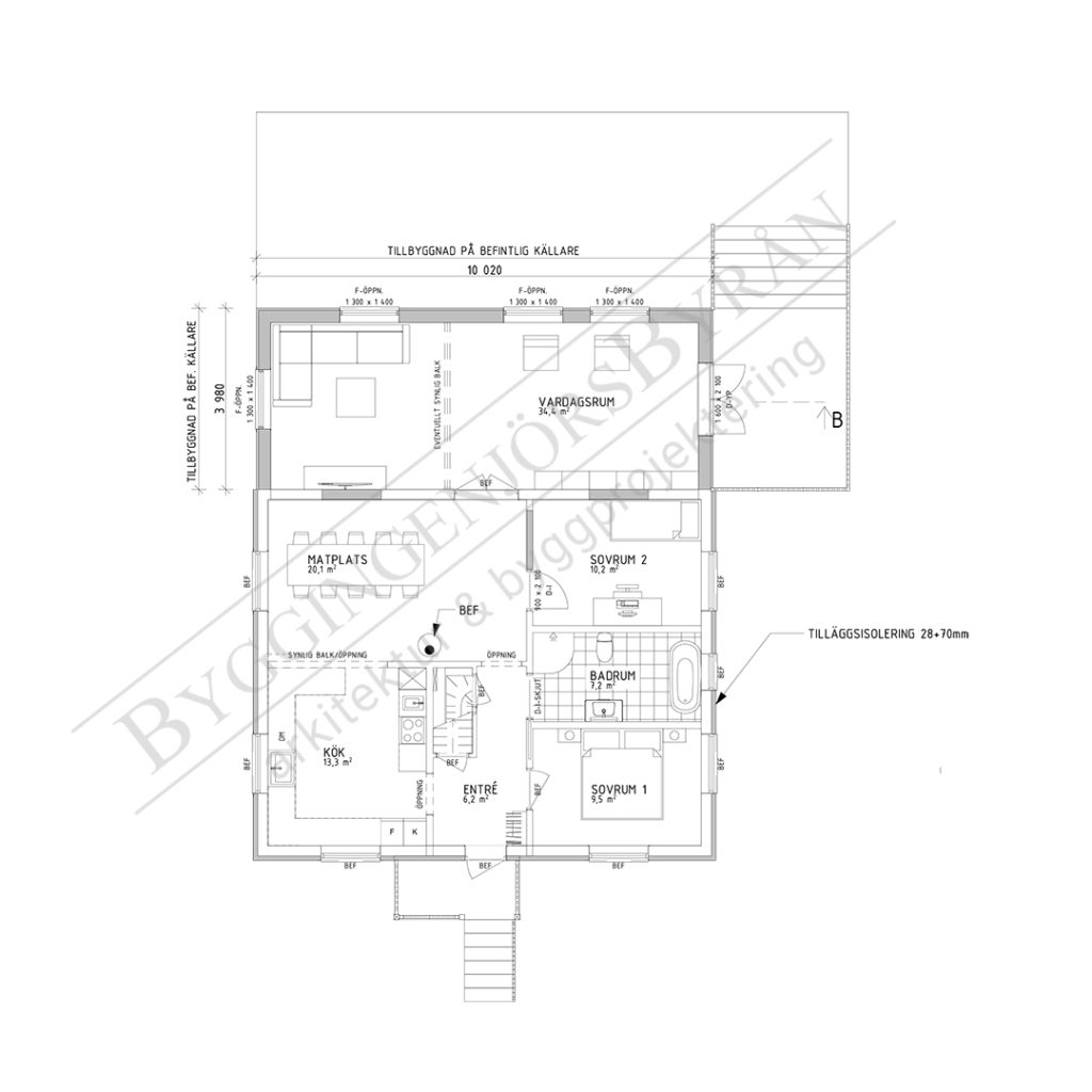
Vårt uppdrag var att ta fram ett förslag på en tillbyggnad som både uppfyllde familjens önskemål och samtidigt tog hänsyn till kommunens krav på varsamhet i området. Eftersom huset redan har en befintlig källare skulle tillbyggnaden anpassas utifrån denna, vilket också innebar att taken på den nya delen måste harmoniera med de befintliga taken. Familjen önskade större och mer öppna sociala ytor.

Vardagsrummet har flyttats till den nya tillbyggnaden som vetter mot baksidan och den grönskande trädgården, vilket skapar ljusa och sociala ytor med kontakt mot utomhusmiljön. Befintliga allrummet omvandlats till ett nytt sovrum

Fakta

Boarea tillkommande: 37 kvm

Fasad

Planritning

Entrévåning