Villa 3505

Villa 3505
Villa 3505

Huset är placerat i Södermanland i ett naturnära område med utsikt över åker och fält.

Planlösningen är planerat så att sociala ytor väter mot utsikten och tilltänkt poolområde. Huset är ett klassiskt trähus med stående träpanel i betsad gråbrun nyans.

Byggingenjörsbyrån uppdrag: upprättande av bygglovshandlingar.

Fakta

Byggarea: 260 kvm
Boarea: 174 kvm + 151 kvm
Antal rum: 10 + 2 WC + 2 badrum

Fasad
Fasadritning tvåplanshus
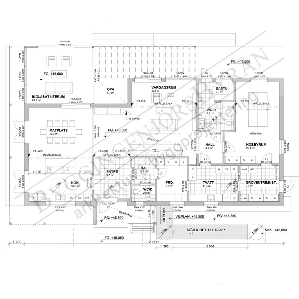
Planritning
Planrinting tvåplanshus entreplan
Entréplan.